申报单位名称:
申报日期:
|
岳阳县农药经营许可申请所需材料目录 |
||
|
序号 |
材料名称 |
页码 |
|
1 |
农药经营许可证申请表 |
|
|
2 |
经营人员情况表 |
|
|
3 |
经营人员学历、资质证明复印件 |
|
|
4 |
工商营业执照复印件 |
|
|
5 |
法定代表人(负责人)身份证明复印件 |
|
|
6 |
经营门店位置图复印件 |
|
|
7 |
经营门店平面布局图 |
|
|
8 |
经营门店店面正照、全景照或复印件 |
|
|
9 |
门店内设备设施清单表 |
|
|
10 |
经营门店店内全景照、局部照或复印件(柜台、货架、陈列柜、制度框等) |
|
|
11 |
经营门店内设备照或复印件(可追溯扫描识别器、计算机及管理系统、灭火器、防毒面具、手套、废物回收桶等) |
|
|
12 |
仓库位置图复印件 |
|
|
13 |
仓库平面布局图 |
|
|
14 |
仓库内设备设施清单表 |
|
|
15 |
仓库外景全照或复印件(仓储大门有“严禁烟火明火、注意防毒、安全第一”标识) |
|
|
16 |
仓库内部全景照、布局照或复印件 |
|
|
17 |
仓库内设备设施照或复印件(灭火器、防毒面具、手套等) |
|
|
18 |
经营门店租用证明 |
|
|
19 |
经营门店用地国土证明 |
|
|
20 |
仓库租用证明 |
|
|
21 |
仓库用地国土证明 |
|
|
22 |
11项农药经营管理制度文本清单及照片 |
|
|
23 |
申请材料真实性、合法性声明 |
|
湖南省农药经营许可
申请表
申请人:(经营单位名称)
联系人:
联系电话:
申请日期: 2018年 月 日
湖南省农业委员会 制
一、申请人基本情况
|
申请人名称 |
(经营单位名称) |
||
|
住所 |
|||
|
营业场所 |
|||
|
仓储场所 |
|||
|
邮政编码 |
传真 |
||
|
电子邮箱 |
|||
|
成立时间 |
年 月 日 |
统一社会信用代码 |
|
|
固定资产 (万元) |
注册资金(万元) |
||
|
法定代表人 (负责人) |
电话 |
||
|
固定电话 |
|||
|
手机 |
|||
|
电子邮箱 |
|||
|
法定代表人 (负责人)签名 |
|||
二、申请农药经营范围
|
经营范围分类 |
申请经营范围 (在对应的栏目中打“√”) |
|
农药 |
|
|
农药(限制使用农药除外) |
√ |
三、分支机构
|
序号 |
经营场所 |
仓储场所 |
|
无 |
无 |
无 |
|
材料名称 |
是否提交(在相应栏目中打“√”) |
备注 |
||
|
1、企业营业执照复印件 |
||||
|
2、法定代表人(负责人)身份证明复印件 |
||||
|
3、经营人员的学历或者培训证明复印件 |
||||
|
4、营业场所和仓储场所地址、面积、平面图等说明材料及照片 |
||||
|
5、营业场所和仓储场所房产证或租赁证明 |
||||
|
6、计算机管理系统、可追溯电子信息码扫描设备、安全防护、仓储设施等清单及照片 |
||||
|
7、有关管理制度目录及文本 |
||||
|
8、申请资料真实性、合法性声明 |
||||
|
申请限制使用农药经营许可证和扩大农药经营许可范围的还应提供以下材料: |
||||
|
9、县级以上地方农业主管部门所属的农药管理机构出具的《湖南省限制使用农药经营许可推荐意见表》 |
||||
|
10、经营人员两年以上从事农学、植保、农药相关工作的经历证明 |
||||
|
11、明显标识限制使用农药的销售专柜、限制使用农药的安全防护设施、设备等清单及照片 |
||||
|
12、有关限制使用农药管理制度目录及文本 |
||||
(经营单位名称)经营人员情况表
填报单位(盖章): 填报日期:2018年 月 日
|
序号 |
姓名 |
职务/岗位 |
所学专业 |
学历 |
技术 职称 |
备注 |
|
1 |
负责人 |
|||||
|
2 |
经营人员 |
|||||
|
3 |
经营人员 |
参加56学时培训并取得培训合格证书 |
||||
注:
1、人员应满足《农药经营许可管理办法》第七条规定所需的条件。
2、填报本表时,请将学历证书及专业技术职称证书的复印件附后。
(经营单位名称)
(相关学历、资质证明复印件)
(经营单位名称)
(身份证正、反面复印件或其他身份证明复印件)
(经营单位名称)
(工商营业执照或照片复印件)
(注:工商营业执照上必须有统一社会信用代码)
(经营单位名称)位置示意图
(地图位置截图)
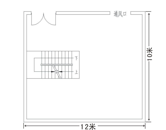
(经营单位名称)平面布局图
营业区面积:40m2
(模板)

说明:经营面积30平方米以上。
(经营单位名称)
|
农药经营许可场地所需设备设施清单 |
||||||||
|
序号 |
设备设施名称 |
规格/型号 |
单位 |
数量 |
是否配备(有则打“√”) |
备注 |
||
|
1 |
货架(带分类标签) |
|||||||
|
2 |
电脑 |
台式电脑 |
||||||
|
手提电脑 |
||||||||
|
3 |
打印机 |
|||||||
|
4 |
电子信息码扫描仪 |
|||||||
|
5 |
安全防护设备 |
防毒面具 |
||||||
|
通风设施 |
||||||||
|
消防设备(如灭火器) |
||||||||
|
手套 |
||||||||
|
洗手池 |
||||||||
|
废弃物回收装置 |
||||||||
|
6 |
11项制度上墙情况 |
|||||||
(经营单位名称)农药经营场地所需资料
(店铺大门全景实拍、店内全景照、局部照或复印件)
(如货架、柜台、灭火器,通风、洗手、废物回收设备,
制度上墙,扫描器、电脑、打印机等设备照片或复印件)
(经营单位名称)仓储场所位置
(地图位置截图复印件)
(经营单位名称)仓储平面布局图
仓储区面积:50m2以上
(模板)

说明:仓库面积50平方米以上。
(经营单位名称)仓储所需资料
(仓储内设备设施清单表,附表)
|
农药经营许可仓储所需资料清单表 |
|||||
|
序号 |
设备名称 |
是否配备(有则打“√”) |
备注 |
||
|
1 |
仓储大门张贴“严禁烟火、注意中毒”的标识 |
||||
|
2 |
安全防护设备 |
防毒面具 |
|||
|
通风设施 |
|||||
|
消防设备(如灭火器) |
|||||
|
洗手池 |
|||||
|
洗涤物品 |
|||||
|
3 |
农药分类标识 |
||||
(经营单位名称)仓储所需资料
(仓储大门张贴标识,农药分类标识、仓储内防毒、消防、通风、洗手设备等照片或复印件)
(经营单位名称)
(经营、仓储用地国土证明材料)
(经营单位名称)
(门面、仓库房屋租赁合同)
(经营单位名称)
|
农药经营许可场地所需制度清单 |
|||||
|
序号 |
制度目录 |
是否提交纸质文本(在相应栏目中打“√”) |
是否提交制度框挂照片或复印件(在相应栏目中打“√”) |
备注 |
|
|
1 |
农药诚信经营承诺书 |
||||
|
2 |
农药产品进货查验制度 |
||||
|
3 |
农药产品台账记录制度 |
||||
|
4 |
农药安全管理制度 |
||||
|
5 |
农药安全防护制度 |
||||
|
6 |
农药安全应急处置制度 |
||||
|
7 |
农药仓储管理制度 |
||||
|
8 |
农药包装废弃物回收与处置制度 |
||||
|
9 |
岗位操作规程 |
||||
|
10 |
限制使用农药名录 |
||||
|
11 |
限制使用农药经营管理制度 |
||||
(经营单位名称)
(农药经营制度照片或复印件)











(经营单位名称)
声 明
本人(本单位、公司、店)自愿申请办理农药经营许可证。按照有关法律法规及相关要求,本人(本单位、公司、店)于 2018 年 月 日向岳阳县政府政务公开服务中心农业窗口提交了办理农药经营许可证的所有申请材料。现就所提交申请材料的真实性、合法性特作如下说明:
本人(本单位、公司、店)于2018年 月 日提交给岳阳县政府政务公开服务中心农业窗口请求办理农药经营许可证的所有材料上的情况都是真实的、合法的、可信的;如有虚假或违法现象,本人(本单位、公司、店)愿承担一切后果,概与他人无关。
特此声明!
声明人(本单位、公司、店):
联系电话:
个人:(签名)
单位:(盖章)
2018年 月 日
填报《农药经营许可申请表》说明
1、总的要求:填报内容必须客观、真实、合法;
2、电子版字体要求:封面填报字体为宋体3号,其他页面填报字体为仿宋4号;
3、“经营者名称”栏:与营业执照上的名称一致;
4、“住所”栏:现居住地地址,精准到村组或街道楼栋门牌号;
5、“营业场所”栏:其地址精准到村组或街道门牌号;
6、“仓储场所”栏:其地址精准到村组或街道门牌号;
7、“邮政编码”栏:指现营业场地的;
8、“传真”栏:能保障联系即可;
9、“电子邮件”栏:能保障联系即可;
10、“成立时间”栏:
11、“统一社会信用代码”栏:与营业执照上的一致;
12、“固定资产”栏:
13、“注册资金”栏:
14、“法定代表人(负责人)”栏:指现经营店的;
15、“联系人”栏:指与经营店有关联的人;
16、“农药”栏:指经营农药,含经营限制使用农药、禁用农药;
17、“农药(限制使用农药除外)”栏:指经营一般性农药;
18、“营业场所面积”栏:标注“长x米*宽x米=x平方米”;
19、“仓储场所面积”栏:标注“长x米*宽x米=x平方米”。
20、“企业营业执照复印件”栏:说明农药经营许可证办理是“先照后证”,即先办理经营执照,后办理许可证。
21、“四、提交材料清单”表:填报内容与《农药经营许可场地所需资料清单表》要求相符。
22、申请材料必须同时提交缮正后的正式纸质文件和电子文档。